Poslovni toranj Vukovarska- Savska, Zagreb
Poslovni kompleks nalazi se na prostoru omeđenom ulicama Grada Vukovara, Savskom i željezničkom prugom. S obzirom na genezu zadana urbanistička točka značajna je za urbani razvoj Zagreba. Neposrednu kontaktnu zonu čine planirana prometnica uz željeznički kolosijek sa zapadne strane i javna zelena površina sa sjeverne strane, na što se kompleks poslovne građevine konceptualno veže. Predloženo rješenje predviđa spojni most zgrade i novopredložene željezničke postaje u osovini nebodera, na visini mezanina odnosno postojeće pruge.
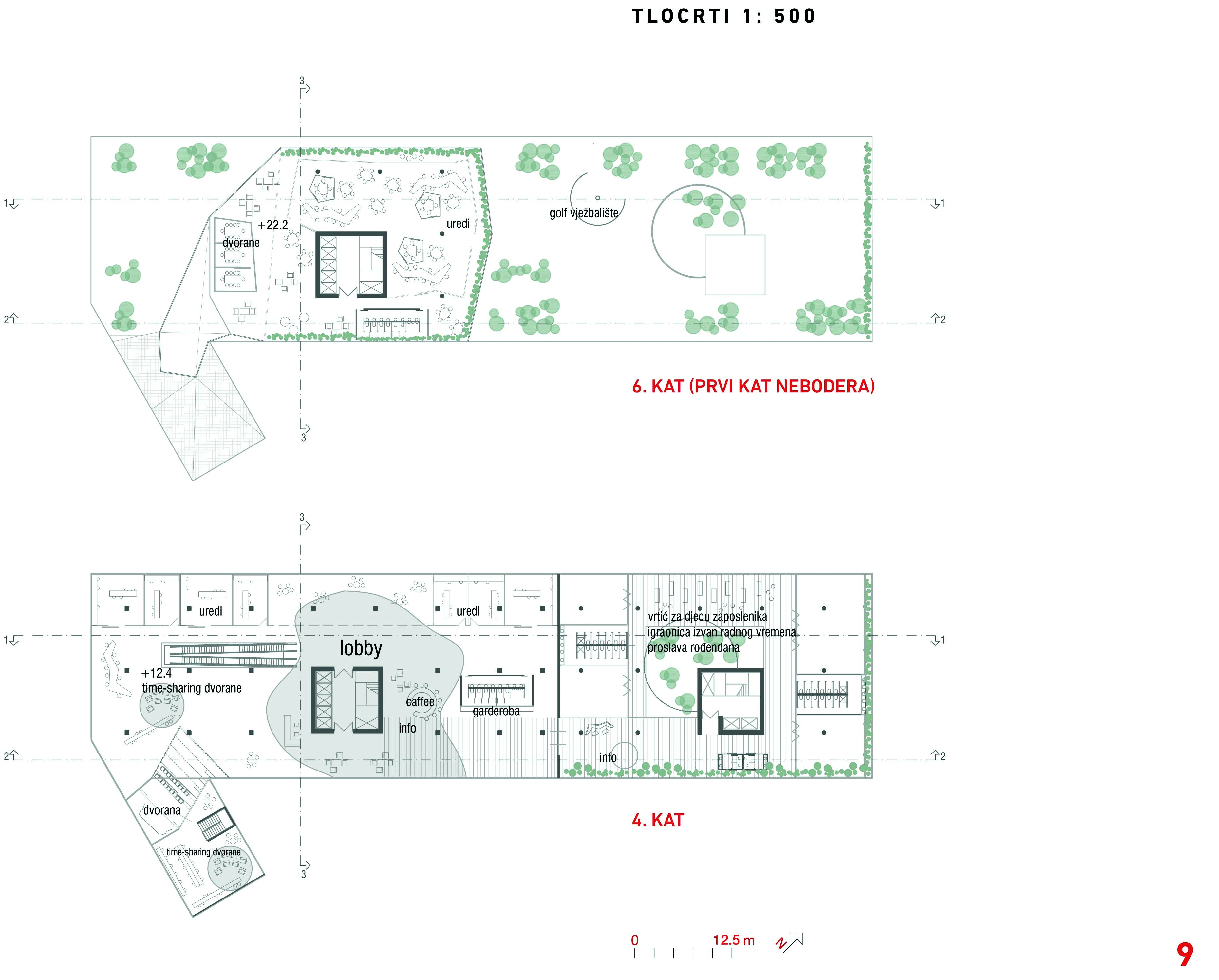
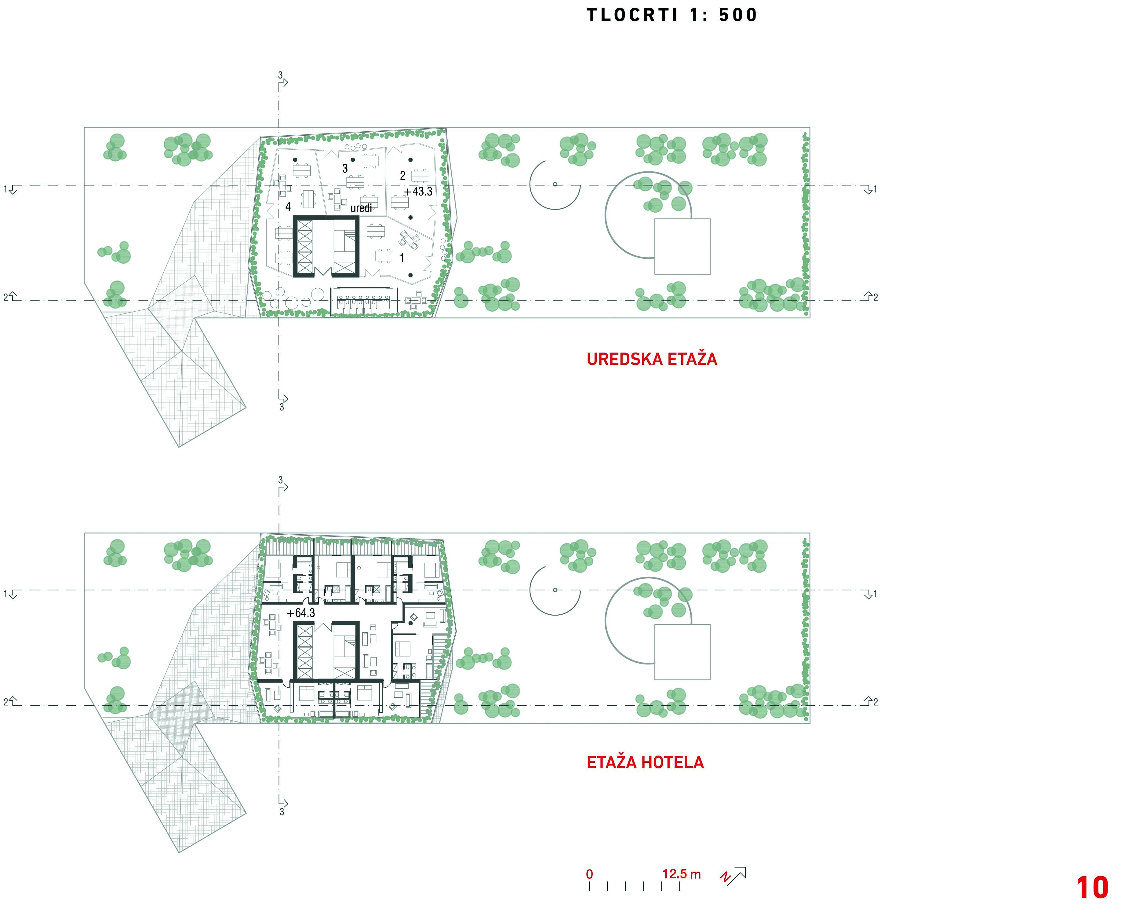
Zelenim ‘jezicima’, linearnim prodorima, atrijima i potpuno ozelenjenim krovom kompleks poslovne građevine potpuno je integriran sa planiranim javnim parkom sa sjeverne strane obuhvata. Kompleks je tretiran kao jedno skulpturalno tijelo, jer njegova visina, zbog urbanističkih ograničenih uvjeta, zahtijeva projekt ‘antinebodera’. Cijelo tijelo je kompaktno i sastoji se od 3 primarne cjeline: horizontalnog volumena ( u čijim se podzemnim etažama smještaju parkirališta, servis, skladišta) te vertikalni toranj, koji preko vezivnog elementa iz horizontale prelazi u vertikalu. Na taj način postignuta je dinamičnost i individualnost u kontekstu drugih zagrebačkih nebodera.
Kompleks tornja jasno komunicira sa obnovljivom energijom sunca, vode, čistoće održivosti, energetske efikasnosti, otvorenim rekreacijskim prostorima i inovativnom tehnologijom. Svi prirodni resursi u zajedničkom su međudjelovanju u smjeru stvaranja čistog i kreativnog okruženja. Projekt je arhitektonska i ekološka ikona u relaciji sa realiziranim socijalnim i ekološkim kvalitetama novog doba. Zaposlenici, stanari (hotelsko-apartmanska etaža) i posjetitelji u takvom okruženju osjećaju dodane vrijednosti ambijenta. Upravo oni traže inspirativnu okolinu koja potiče na održiva rješenja, s ciljem poticanja kreativnosti u radnom ambijentu.
Stambeni prostori su za iznajmljivanje. Stalna promjena očituje se i u izmjeni korisnika što dodatno ukazuje na mobilnost koja se očituje u suvremenom svijetu. Zato su stanovi kao i poslovni prostori u horizontalnom tijelu, predviđeni za kratkoročno iznajmljivanje kako bi zadržali svježu energiju novih korisnika i inspirativno okruženje, da bi se osigurala ekonomičnost predloženog rješenja. Poslovni prostori za iznajmljivanje osmišljeni su u nekoliko principa: omogućuju cirkulaciju energije, znanja i svježih ideja što je važan čimbenik uspješnog razvoja tehnologije i kompetitivnosti.
Zelenim ‘jezicima’, linearnim prodorima, atrijima i potpuno ozelenjenim krovom kompleks poslovne građevine potpuno je integriran sa planiranim javnim parkom sa sjeverne strane obuhvata. Kompleks je tretiran kao jedno skulpturalno tijelo, jer njegova visina, zbog urbanističkih ograničenih uvjeta, zahtijeva projekt ‘antinebodera’. Cijelo tijelo je kompaktno i sastoji se od 3 primarne cjeline: horizontalnog volumena ( u čijim se podzemnim etažama smještaju parkirališta, servis, skladišta) te vertikalni toranj, koji preko vezivnog elementa iz horizontale prelazi u vertikalu. Na taj način postignuta je dinamičnost i individualnost u kontekstu drugih zagrebačkih nebodera.
Kompleks tornja jasno komunicira sa obnovljivom energijom sunca, vode, čistoće održivosti, energetske efikasnosti, otvorenim rekreacijskim prostorima i inovativnom tehnologijom. Svi prirodni resursi u zajedničkom su međudjelovanju u smjeru stvaranja čistog i kreativnog okruženja. Projekt je arhitektonska i ekološka ikona u relaciji sa realiziranim socijalnim i ekološkim kvalitetama novog doba. Zaposlenici, stanari (hotelsko-apartmanska etaža) i posjetitelji u takvom okruženju osjećaju dodane vrijednosti ambijenta. Upravo oni traže inspirativnu okolinu koja potiče na održiva rješenja, s ciljem poticanja kreativnosti u radnom ambijentu.
Stambeni prostori su za iznajmljivanje. Stalna promjena očituje se i u izmjeni korisnika što dodatno ukazuje na mobilnost koja se očituje u suvremenom svijetu. Zato su stanovi kao i poslovni prostori u horizontalnom tijelu, predviđeni za kratkoročno iznajmljivanje kako bi zadržali svježu energiju novih korisnika i inspirativno okruženje, da bi se osigurala ekonomičnost predloženog rješenja. Poslovni prostori za iznajmljivanje osmišljeni su u nekoliko principa: omogućuju cirkulaciju energije, znanja i svježih ideja što je važan čimbenik uspješnog razvoja tehnologije i kompetitivnosti.
