Trgovačko-poslovno-stambeni kompleks Gruž, Dubrovnik
Lokacija sklopa uz Gruški zaljev, između zapadnog prilaza Dubrovniku i Starog grada, istaknula je potrebu artikuliranja novog javnog gradskog prostora i žarišta ovoga, dugo vremena zapostavljenog gradskog prostora. Novi trgovačko-poslovno-stambeni kompleks osmišljen je na lokalitetu bivše Tvornice ulja Radeljević i Javnog prometnog poduzeća Libertas. Južnu zonu dvojne parcele heterogenog karaktera određuje zona zaštićenih građevina neujednačene dispozicije (ljetnikovci Gradi-Vuić i Bassegli-Gozze, bivša upravna zgrada Tvornice ulja Radeljević te secesijska zgrada ‘Dubrovačke električne željeznice’).
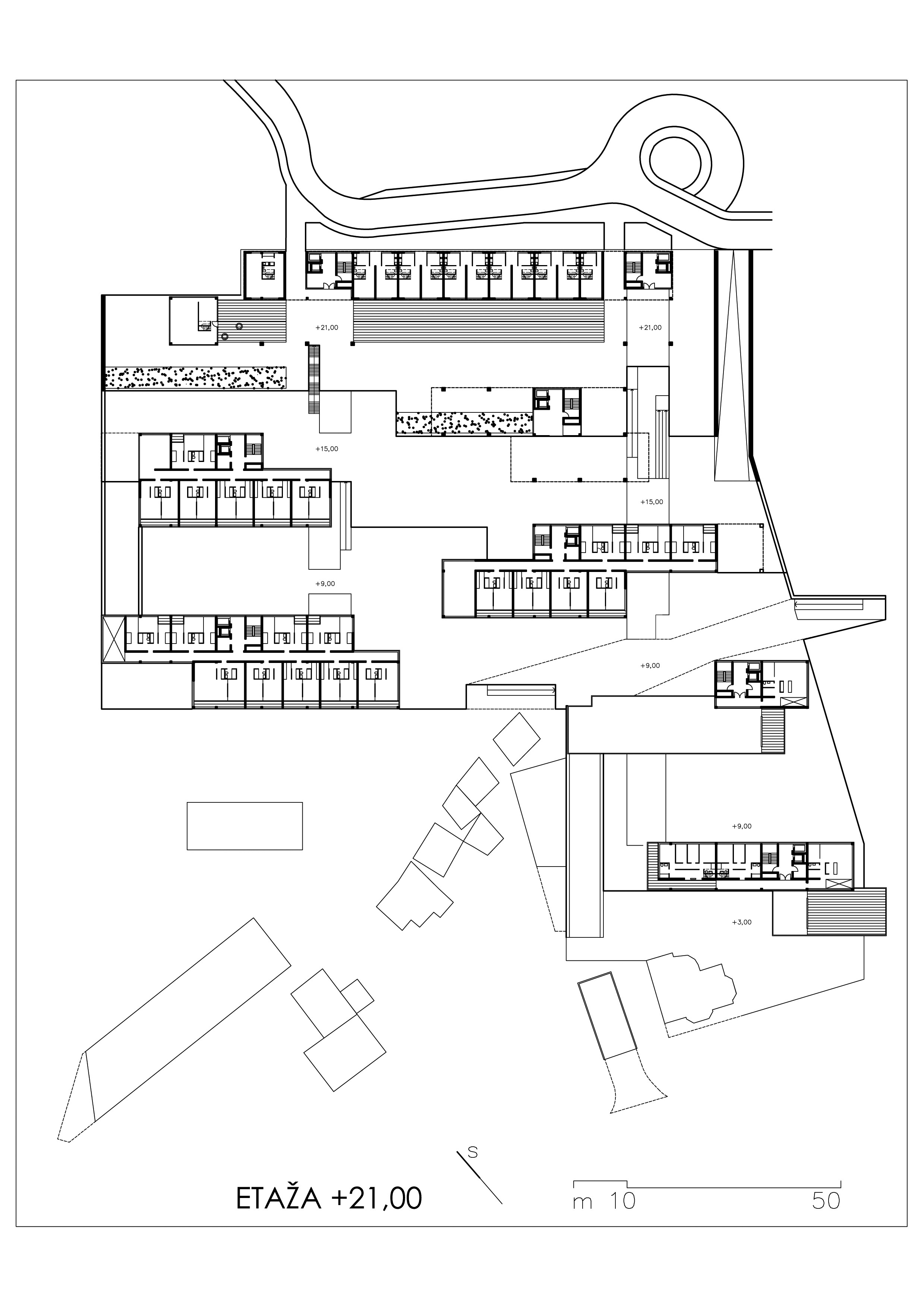
Inicijalna ideja o protezanju javnog prostora cijelom površinom parcele ostvaruje se terasastom strukturom koja prati rast terena te se referentno veže na kaskadne strukture dubrovačkog područja, arhitektonski interpretirani kao krovni platoi. Trgovačko-poslovni prostori smješteni su podno platoa dok su rezidencijalne zgrade izdignute, a time se cijelom površinom dobiva kontinuitet javnog prostora. Kaskadnom strukturom javnog prostora formira se gradacija frekvent-
nosti korisnika, a time i privatnosti, od najnižeg javnog platoa uz Vukovarsku ulicu do najvišeg stambenog platoa na sjeveru. Pješačka komunikacija polaganog uspinjanja prema modelu serpentine ostvaruje se bočnim rampama, a takva putanja tangira dugu frontu izloga, opnu trgovačkih sadržaja i javnog prostora. Karakteristične skale reinterpretiraju se dvama potezima, poveznicama javnih platoa i sjevernih prometnih pravaca, te upuštenog trgovačko-poslovnog centra.
Novoformirani javni gradski prostor sadržajno je oplemenjen predloženim mini-muzejima (ishodištima tematskih ruta obilaska), referentnim zatečenim i zaštićenim zgradama (ljetnikovci, sklopovi tehničke kulture, arhitektura XX. stoljeća) koji su osmišljeni s ciljem da se rastereti stara gradska jezgra i oblikuje novo, prepoznatljivo i sadržajno bogato gradsko središte.
Inicijalna ideja o protezanju javnog prostora cijelom površinom parcele ostvaruje se terasastom strukturom koja prati rast terena te se referentno veže na kaskadne strukture dubrovačkog područja, arhitektonski interpretirani kao krovni platoi. Trgovačko-poslovni prostori smješteni su podno platoa dok su rezidencijalne zgrade izdignute, a time se cijelom površinom dobiva kontinuitet javnog prostora. Kaskadnom strukturom javnog prostora formira se gradacija frekvent-
nosti korisnika, a time i privatnosti, od najnižeg javnog platoa uz Vukovarsku ulicu do najvišeg stambenog platoa na sjeveru. Pješačka komunikacija polaganog uspinjanja prema modelu serpentine ostvaruje se bočnim rampama, a takva putanja tangira dugu frontu izloga, opnu trgovačkih sadržaja i javnog prostora. Karakteristične skale reinterpretiraju se dvama potezima, poveznicama javnih platoa i sjevernih prometnih pravaca, te upuštenog trgovačko-poslovnog centra.
Novoformirani javni gradski prostor sadržajno je oplemenjen predloženim mini-muzejima (ishodištima tematskih ruta obilaska), referentnim zatečenim i zaštićenim zgradama (ljetnikovci, sklopovi tehničke kulture, arhitektura XX. stoljeća) koji su osmišljeni s ciljem da se rastereti stara gradska jezgra i oblikuje novo, prepoznatljivo i sadržajno bogato gradsko središte.
